Доска магнитно-маркерная Attache 100х300см, белая, лаковая, алюминиевая рама, полочка
Доска магнитно-маркерная Attache 100х300см, белая, лаковая, алюминиевая рама, полочка
31759 ₽
31759
₽
за шт.
доступное количество товара
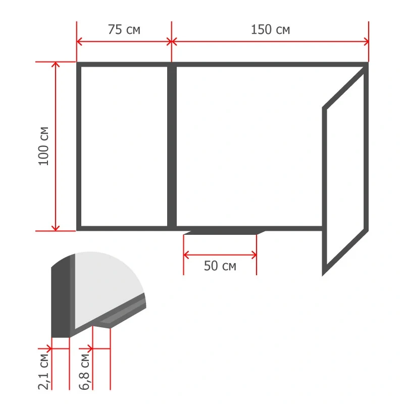
Магнитно-маркерная доска представляет собой двустороннюю конструкцию, подходящую для офисов и учебных заведений. Она состоит из центральной секции шириной 150 см и двух боковых секций шириной по 75 см каждая. Высота доски - 100 см. Боковые секции можно откинуть вовнутрь, что добавляет удобства при эксплуатации.
Рабочая поверхность
Рабочая поверхность доски белая, что позволяет использовать ее с маркерами для магнитно-маркерных досок и прикреплять информацию с помощью магнитов. Для удаления записей рекомендуется использовать специальные губки-стиратели и чистящий спрей для более тщательной очистки.
Комплектация
В комплект входит лоток для маркеров, а крепеж для установки на стену уже включен в набор.
Конструкция и материалы
Конструкция доски усилена премиум профилем овального сечения шириной 21 мм, что придает ей дополнительную прочность и надежность.
Инструкция по монтажу
Для удаления пленки потяните за верхний свободный угол, пленка легко отойдет от рабочей поверхности. При необходимости проведите вдоль рамы канцелярским ножом.
